Á¤º¸&ÀÚ·á½Ç > Àåºñ¿ÍÀÚÀÛ > Ãà¾çÀå µµ¸é..
¡Ø¹°»ç¶û ³ª´®ÅÍ ÃæÃ»°ü»ó¾îµ¿È£È¸ ¾ÆÄí¾ÆÈѹи®¿¡ ¿À½Å°É ȯ¿µÇÕ´Ï´Ù.

Today : 113   Total : 3,096,934   
Àåºñ¿ÍÀÚÀÛ

HOME £¾Á¤º¸&ÀÚ·á½Ç £¾Àåºñ¿ÍÀÚÀÛ

ȸ¿ø´ÔµéÀÇ ÀÚÀÛ ³ëÇϿ츦 °øÀ¯ÇÏ´Â °÷ÀÔ´Ï´Ù.

¾ÆÄí¾ÆÈѹ̸® ȸ¿øÀÌ½Ã¸é ´©±¸³ª ÀÚÀ¯·Ó°Ô ÀÌ¿ëÇÏ½Ç ¼ö°¡ ÀÖ½À´Ï´Ù.

°Ô½Ã¹°, ƯÁ¤»ó´ë¿¡ ´ëÇÑ ºñ¹æÀ̳ª ¼±Àü¼º ±ÛÀº ¿¹°í¾øÀÌ »èÁ¦ µÉ ¼ö ÀÖ½À´Ï´Ù.

 
ÀÛ¼ºÀÏ : 08-03-25 20:12
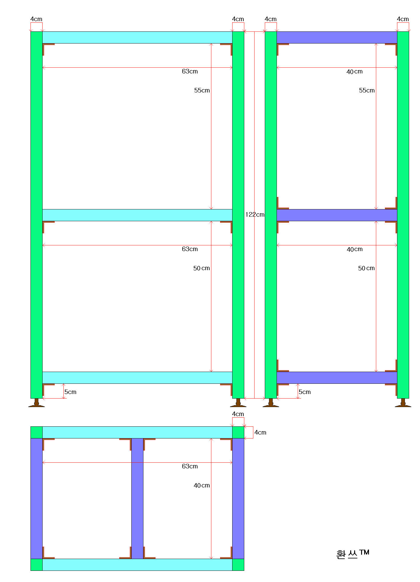
Ãà¾çÀå µµ¸é..
 ±Û¾´ÀÌ : ȯ¾²
Á¶È¸ : 5,756  

Áý¿¡¼­ ´ÙÀ½´Þ °èȹÁßÀÎ Ãà¾çÀå µµ¸é Çѹø ±×·Áº¸¾Ò½À´Ï´Ù..

 

ÇÁ·ÎÆÄÀÏ 40*40À¸·Î µµ¸é ¸¸µç°ÍÀ̰í¿ä..

1ÃþÀÚ¹Ý2°³,2Ãþ2ÀÚ,3Ãþ2ÀÚ.. ¿ä·¸°Ô ±¸¼ºÀ̱¸¿ä..

µµ¸é Ȥ½Ã ¾²½ÇºÐµé ÆÛ°¡¼¼¿ä..

±×¸²ÆÇÀ¸·Î ´ëÃæ ±×¸°°Å¶ó ÇãÁ¢ÇÕ´Ï´Ù..


Áøµµ°³ 08-03-26 07:19
 
±×¸²ÀÌ ¾È¶ß³×¿ä. ¤Ð¤Ð Ãà¾çÀå¶«½Ã ´«¿©°Ü º¼·Á°í Çߴµ¥... ¤Ð
½º³ªÀÌÆÛ 08-03-26 11:59
 
3030À¸·Îµµ ÇÏÁß ÃæºÐÇÕ´Ï´Ù
°µ´ÞÇÁ 08-03-26 12:09
 
3030À¸·Î Çϼŵµ ÃæºÐÇϰí¿ä.. ¼¼·Î º¸°­À» Çϼ̴µ¥ ¼¼·Î º¸´Ù´Â °¡·Î º¸°­À» ÇÏ¼Å¾ß ÁÁ½À´Ï´Ù.
Àú·±½ÄÀÇ ¼¼·Î º¸°­À» ÇÏ¸é ¼öÁ¶ÀÇ ÇÏÁßÀÌ ¼¼·ÎÂÊ ÇÁ·ÎÆÄÀÏ¿¡´Â Àß Àü´ÞÀÌ µÇÁö ¾Ê½À´Ï´Ù.
Èçµé¸é ¸¹ÀÌ Èçµé¸®°í¿ä.. Á¶¸í ºÎÂøÇϱ⵵ °¡·Î º¸°­ÀÌ ÆíÇϱ¸¿ä... ÇÁ·ÎÆÄÀÏÀÌ Á¶±Ý ´õ µé¾î°¡±â´Â ÇÒÅÙµ¥ ¾Æ¸¶ ¸îõ¿ø Á¤µµ Â÷ÀÌÀϰ̴ϴÙ.
ȯ¾² 08-03-26 16:26
 
3030À¸·Î ÇØµµ ÇÏÁß °ßµð¸é ´Ù½Ã ¼öÁ¤ÇÏ¿©¾ß°Ú³×¿ä ^0^
 
   
 

Copyright (c) 2005 ~ 2015 ¾ÆÄí¾ÆÈѹ̸® all right reseved.