|
Àåºñ¿ÍÀÚÀÛ |
HOME £¾Á¤º¸&ÀÚ·á½Ç £¾Àåºñ¿ÍÀÚÀÛ
|
|
|
|
|
ȸ¿ø´ÔµéÀÇ ÀÚÀÛ ³ëÇϿ츦 °øÀ¯ÇÏ´Â °÷ÀÔ´Ï´Ù.
¾ÆÄí¾ÆÈѹ̸® ȸ¿øÀÌ½Ã¸é ´©±¸³ª ÀÚÀ¯·Ó°Ô ÀÌ¿ëÇÏ½Ç ¼ö°¡ ÀÖ½À´Ï´Ù.
°Ô½Ã¹°, ƯÁ¤»ó´ë¿¡ ´ëÇÑ ºñ¹æÀ̳ª ¼±Àü¼º ±ÛÀº ¿¹°í¾øÀÌ »èÁ¦ µÉ ¼ö ÀÖ½À´Ï´Ù.
ÀÛ¼ºÀÏ : 11-07-28 19:54
 Á¶È¸ : 5,990
|
 
|
|
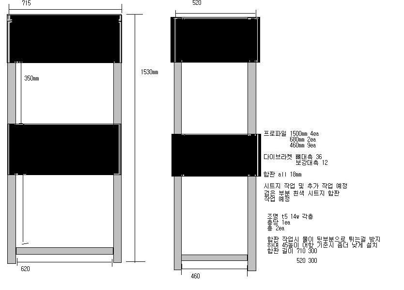
¾Æ·§±ÛÀÇ µµ¸é »çÁøÀÔ´Ï´Ù.
|
|
|